Edificio Residencial El Sol

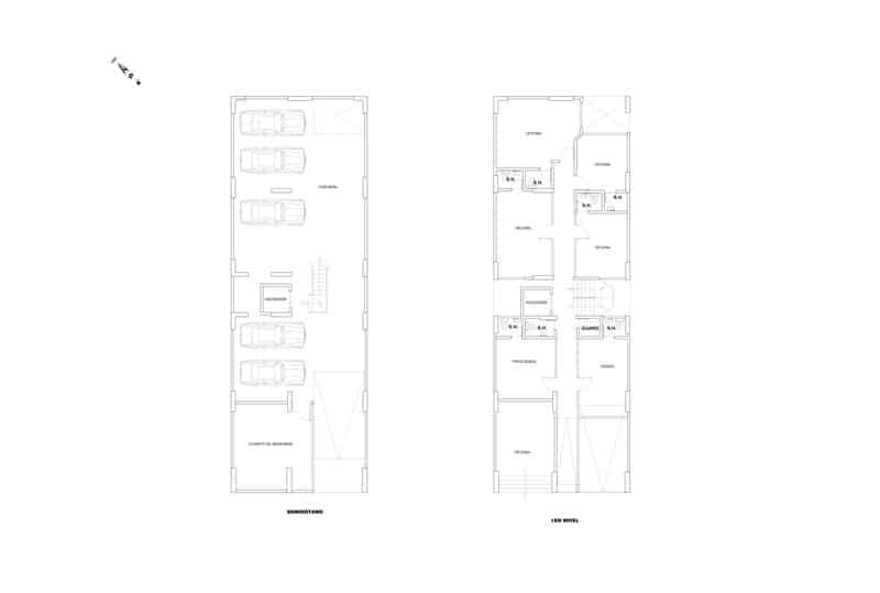
El edificio se sitúa en una zona céntrica de la ciudad del Cusco, el proyecto abarca ocho pisos y un semisótano.

El encargo consistía en proyectar un edificio de departamentos (dos departamentos por piso), como elemento ordenador se tiene un caja de escaleras y ascensor central a partir del cual se distribuyen a los diferentes ambientes del edificio.

Para la fachada se propuso establecer un contraste de llenos y vacíos, así como de juegos de vanos, fachada acristalada y terrazas sobresalientes que le da carácter al edificio.

 

  • UBICACIÓN : AV. MICAELA BASTIDAS
  • DISTRITO : WANCHAQ
  • PROVINCIA : CUSCO
  • REGION : CUSCO
  • DISEÑO : JOSE LUIS ARENAS ARQUITECTO
  • AÑO : 2016