Casa Panamericana

La casa se sitúa en una de las Av. Principales de Sicuani(Com. Chumo). Desde el se deleita con hermosas visuales a la urbe y el campo rodeado de copiosa vegetación.

El edificio esta orientado al Este, por las mañanas recibe los primeros rayos del sol que llegan directamente a los dormitorios y la sala comedor, se genero amplios vanos que permitieran el acceso de luz al interior de la vivienda.

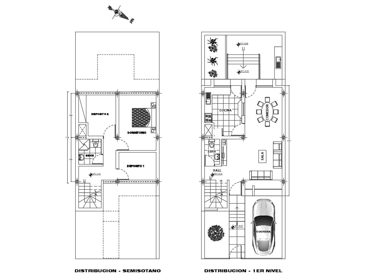
la Propuesta arquitectónica se basa en generar espacios amplios en un lote reducido en el cual se zonificó de la siguiente forma; la zona publica en el 1er Nivel al cual se accede a través de una escalera, la zona privada en el 2do nivel y una terraza para poder disfrutar del paisaje de los alrededores.